
Apartment Sold
Three-Bedroom Retreat!
Apartment Sold
SOLD
Property Overview
10 / 6 Howitt Street, Kingston, Australian Capital Territory 2604
- Price
- SOLD
- Status
- Sold
- State
- Australian Capital Territory
QUICK LINKS
Auction
- Date: 29 November 25
- Time: 10:15am
VIEW LOCATION
Description
Three-Bedroom Retreat!
Auction Location: On SitePositioned in one of Kingston's most sought-after addresses, this beautifully renovated top floor three-bedroom, two-bathroom apartment with ensuite in Howitt Street offers an enviable lifestyle within a boutique complex of just twelve residences.
Step inside and be greeted by a light-filled interior where neutral tones and contemporary finishes create a mood of relaxed sophistication. The updated design includes new cornices, architraves, and sheeted walls, offering a fresh, modern aesthetic that blends seamlessly with the apartment's generous proportions.
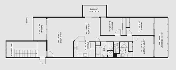
The spacious open-plan living area extends onto front and side balconies, providing an abundance of natural light and creating an ideal environment for entertaining friends and family as it flows directly from the living space. At the rear of the property, a balcony offering plantation shutters, accessed from the master and second bedrooms, provides a secluded outdoor space, perfect for enjoying a quiet cup of coffee or simply relaxing in private. All bedrooms have external views, maintaining a sense of connection to the outdoors.
The kitchen features an elegantly renovated splash-back, updated electrical fittings and abundant storage and bench space, ideal for everyday living and entertaining.
All bedrooms include built-in robes for added convenience and storage. Additional features include: hybrid flooring in the living, dining, kitchen and hallway zones; a full main bathroom with integrated laundry; a separate powder room; new ceiling fans in the bedrooms; a brand-new split-system heater/air conditioner in the living space; and an additional split-system for heating and cooling in the second bedroom ensuring year-round comfort. Secure underground parking offers an overall space of 49m², allowing for the parking of one vehicle and a bike or trailer. A fully enclosed storage unit is also included, providing excellent potential for a workshop area or added security for storing bikes.
Location is key — perfectly positioned between Kingston Village and the Kingston Foreshore, offering the ultimate walkability to cafés, restaurants, boutique shopping, galleries, and lakeside walks. Public transport is also easily accessible, connecting you effortlessly to the city and beyond.
Highlights:
Boutique complex of 12 residences
Prime leafy location on Howitt Street, Kingston
Walkable to Kingston Village and Kingston Foreshore
Top floor, Three bedrooms, all with built-in robes and balcony access
New hybrid flooring in living, dining, hall and kitchen
Master bedroom with ensuite; shares rear balcony with second bedroom
Front balcony off living area ideal for entertaining
Renovated kitchen and bathrooms
New electrical throughout
Neutral palette and modern finishes throughout
New double glazing and flooring
Updated electrical fittings and reverse-cycle split system
Ceiling fans in bedrooms
Single car parking plus trailer and storage.
Complex has Solar panels, rebate shared with owners as per unit entitlement.
Separate powder room
Close to cafés, restaurants, galleries, and Lake Burley Griffin
Property Details:
Year built: 1990
Number in Complex: 12
Apartment size: 98.8m2 plus front Balcony 6.9m2 Side Balcony: 6.7m2 Back Balcony: 11.9m2
Car space & Storage : 49m2
Rates: $842.00 per quarter Body Corporate Fees: $1697.00 per quarter.
Rental Appraisal: $900.00 per week.
Sale with vacant possession.
Disclaimer:
While all care has been taken in compiling information regarding properties marketed for rent or sale, we accept no responsibility and disclaim all liabilities in regards to any errors or inaccuracies contained herein. All parties should rely on their own investigation to validate the information provided.
This property is being sold by auction or without a price and therefore a price guide cannot be provided. The website may have filtered the property into a price bracket for website functionality purposes only.
Property Video
Related Properties
Luxury Top-Floor Apartment in ‘The Domain’
25 / 2-4 Leichhardt Street, GRIFFITH
- 3 Beds
- 2 Baths
- 2 Cars
Auction on Site the 6 June at 10am.
View PropertyOriginal Home, Outstanding Opportunity Auction on Site 30/5/26
24 Legge Street, DOWNER
- 3 Beds
- 1 Baths
- 1 Cars
Auction on site 30th May 10:00am
View Property
